|
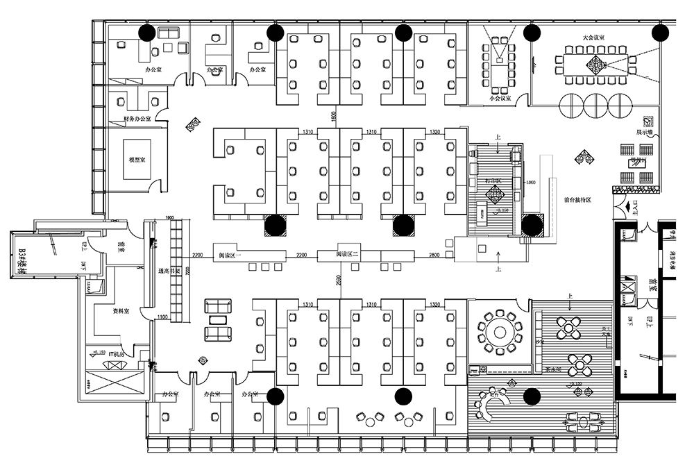
产品名称:800平米泰康大厦办公室

上一个: 广铁集团子公司粤铁科技金星大厦办公室
下一个: 600平方米兰迪亚传媒办公室
广佛本地化办公室空间装饰服务商
微信公众号
企业微博
广州星盛装饰工程有限公司
服务邮箱:service@xingshengdec.com
联系电话:188-2508-1788 | 188-2508-1788
公司地址:广州市天河区翰景路1号金星大厦5楼501